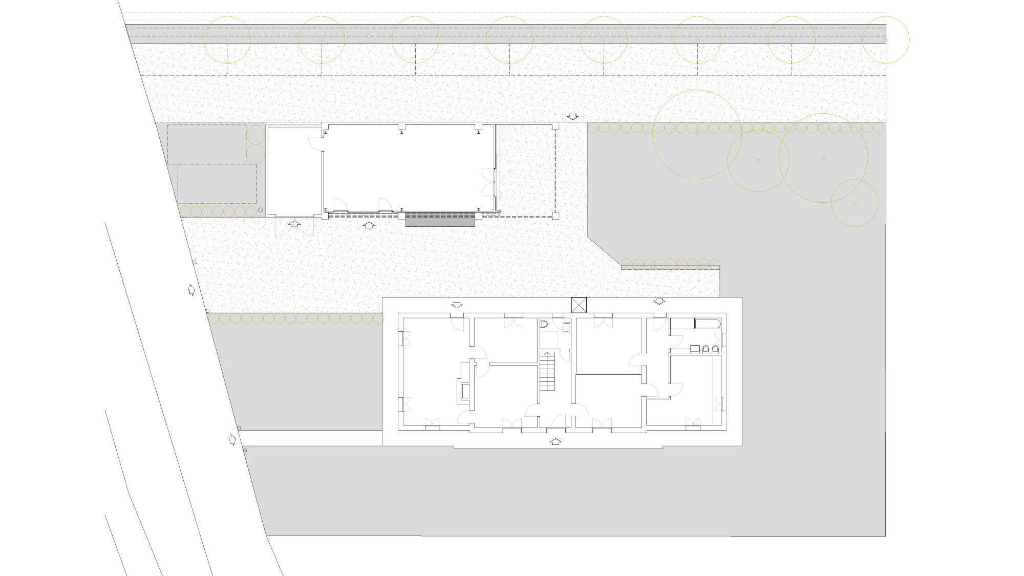
We're working to transform a small rural building into a Theatre, of words and music: a place where every rehearsal is already a performance, and every listening experience, a spectacle. The agricultural landscape is transforming, but the barn will continue to guard: no longer hay, but sounds, voices, presences. A space stripped to its essence, only apparently marginal, which becomes an invisible stage machine, where music and theater rediscover intimacy and a profound connection with the land.








